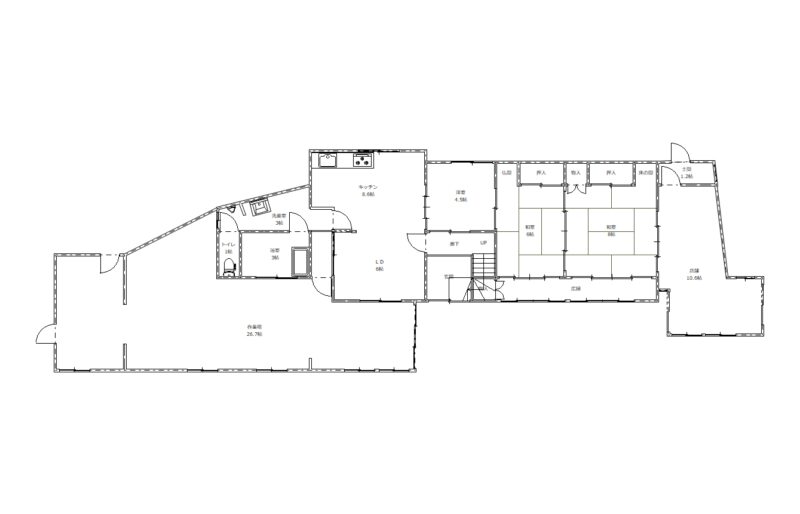
作業場、店舗付き一戸建て住宅です。
- 価格
- 200万円
- 種別
- 中古戸建
- 間取
- 6LDK
-
- 所在地
- 宮崎県延岡市北方町川水流1704-4
- 交通
- バス(川水流バス停 停歩1分)
物件詳細
| 築年月 | 1972/5 | 新築/中古 | 中古 |
|---|---|---|---|
| 面積 | 計測方式 | ||
| バルコニー | 向き | ||
| 建物階数 | 地上2階 | 部屋階数 | |
| 建物構造 | 木造 | ||
| 建築面積 | 130.98m² | ||
| 間取内容 |
1階:和8帖、和6帖、和4.5帖、LDK14.6帖、作業場26.7帖、店舗10.6帖 2階:和7.5帖、洋9.8帖、洋6.5帖、倉庫5.9帖 |
||
| 駐車場 | 空有 屋根付きですが、段差がある為スロープ板が必要です。 | 取引態様 | 専任 |
| 引渡/入居時期 | 即時 | 現況 | 空家 |
| 地目 | 宅地 | 用途地域 | 無指定 |
| 都市計画 | 都市計画区域外 | 地勢 | 高台 |
| 土地面積 | 279.08m² | 土地面積計測方式 | 公簿 |
| セットバック | 無 | セットバック量 | |
| 建ぺい率 | 50% | 容積率 | 150% |
| 土地権利 | 所有権 | 接道状況 | 一方 |
| 接道方向1 | 南 | 接道間口1 | 20m |
| 接道種別1 | 公道 | 接道幅員1 | 10m |
| 国土法届出 | 不要 | ||
| 周辺環境 |
北方学園小学校 北方学園中学校 |
||
| 設備・条件 | プロパンガス 公営水道 排水下水 | ||
| 物件番号 | 287394 | 掲載期限日 | 2025/12/31 |
| 特記事項 | その他土地:山林128㎡、雑種地155.21㎡付きです |
||
Loading...
※物件掲載内容と現況に相違がある場合は現況を優先と致します。
お問い合わせはこちらからお寄せください
お電話からのご予約・お問い合わせ
TEL0982-32-2133
営業時間9:00~17:30
定休日 土日祝
宮崎県知事(2)第4764号
WEBからのご予約・お問い合わせ
-500x321.jpg)

-500x321.jpg)
